Kiadó erkélyes lakás a Bartókban

26 Nyomtatás Ajánlás Facebook

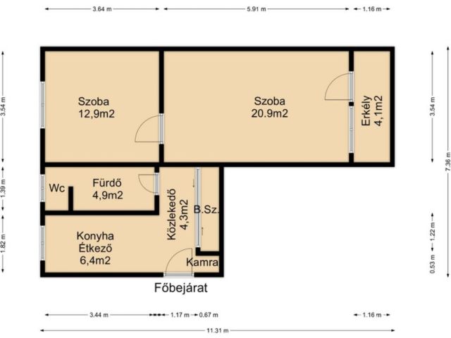
Nagykanizsán, zöld övezetben, a Bartók Béla utcában található, ez az 55m2-es, jó állapotú, 2 szobás, 3. emeleti, erkélyes, KIADÓ lakás. Az ingatlan helységeit tekintve, két szobából, melyek közül a nagyhoz erkélykapcsolat is tartozik, egy fürdőből mellékhelységgel együtt, közlekedőből, kamrából és egy étkezős konyhából áll.
Saját tárolóval is rendelkezik az ingatlan.
Fűtése egyedi gáz konvektor. Tájolás: Észak-Dél. Közös költség: 14.080 Ft/hó
A bérleti jogviszony megkezdéséhez, egy havi bérleti díj valamint 2 havi kaució szükséges.
Az ingatlan csak hosszú távra, de minimum 1 évre KIADÓ. Kulcs az irodában.
Iroda: Nagykanizsa Platán sor 7

Hohl József
PRÉMIUM

Hohl József

10 éve a Városi Ingatlaniroda tagja
Régióigazgató, ingatlanértékesítő
Nagykanizsa
+36 (30) 608 6857
Észrevétel a hirdetéssel kapcsolatban
Egy ingatlanos naplója