Kényelmes egyszintes! Önálló ház kis kerttel a belvárosban

836 Nyomtatás Ajánlás Facebook

Eladó kényelmes, egyszintes, önálló családi ház Békéscsaba belvárosában

Kiváló elhelyezkedéssel, kisebb méretű önálló telken kínálunk eladásra egy teljesen felújított, egyszintes családi házat.
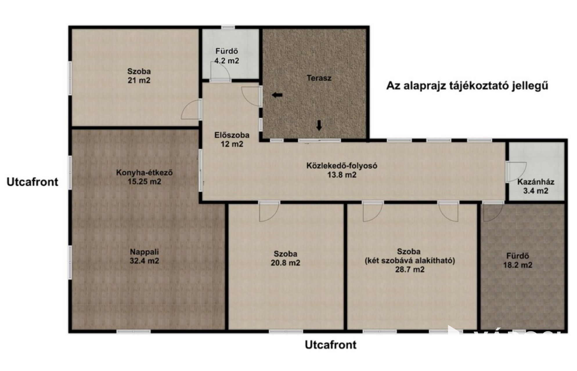
Az ingatlan 150 m² lakóterű, kényelmes méretű, napfényes helyiségekkel:

a házban 4 kényelmes szoba ( 3 szoba, a legnagyobb két ablakkal, két ajtóval kialakított, így igény szerint egy gipszkartonnal kettéválasztható)
egy tágas nappali-étkező-konyha, valamint 2 igényesen kialakított fürdőszoba található.

Az amerikai konyha modern megoldásaival a közösségi tér, a családi együttlétek helyszíne, a szobák lehetőséget kínálnak az elkülönülésre.
A teraszon és a kisebb méretű kertben élvezhetjük a saját, intim tér által adott lehetőségeket és a békés környezetet.

Az ingatlanban új nyílászárók, külső hőszigetelés, valamint új villamoshálózat került kiépítésre, amelyek hozzájárulnak a korszerű és energiatakarékos otthon érzetéhez. A padlófűtés minden helyiségben biztosítja a kellemes hőérzetet a hidegebb hónapokban. A lakás redőnyözött, így biztosítva a privát szférát.

Az udvaron gépjárműbeállási lehetőség is rendelkezésre áll, így az autó biztonságosan parkolhat. A ház központi elhelyezkedése miatt a belváros gyalogosan is könnyen megközelíthető, ami kiváló közlekedési adottságokat jelent.

Ne hagyja ki ezt a remek lehetőséget, hogy beköltözzön egy igényesen felújított otthonba Békéscsaba belvárosában! További információért és személyes megtekintésért keressen bizalommal.

Krizsán Ibolya Ildikó
PRÉMIUM

Krizsán Ibolya Ildikó

2 éve a Városi Ingatlaniroda tagja
Ingatlanértékesítő
Békéscsaba
+36 (20) 936 2513
Észrevétel a hirdetéssel kapcsolatban
Egy ingatlanos naplója