Ikerház építésére is alkalmas telek kiemelt övezetben!

2423 Nyomtatás Ajánlás Facebook

Ritka lehetőség Debrecen egyik legkeresettebb részén – többféle hasznosítási opcióval

Debrecen kiemelten keresett Kertvárosi részén eladó egy 721 m²-es lakóövezeti ingatlan, amely számos lehetőséget rejt, ezért befektetőknek és magánszemélyeknek egyaránt kiváló választás. A környéken ritka az eladó ház, így az ingatlan gyors döntést igényel.

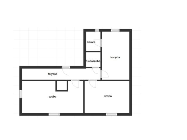
A telken jelenleg egy jó állapotú, 70 m²-es, a 60-as években épült családi ház áll.

Jellemzői:
-előtér, konyha, kamra, 2 szoba, fürdőszoba WC-vel, kis pincerészből áll,
-tégla alapon, tégla falazat,
-gázkazán, radiátoros fűtéssel,
-átfolyós vízmelegítő,
-cserépkályha amely az egyik szobában és a konyhában is biztosítja a kellemes hőérzetet,
-víz, villany és gáz bekötve.

Az udvaron található egy fúrott kút, amellyel az öntözés megoldható, illetve egy kisebb tároló épület.

Az ingatlan igény szerint felújítható vagy bővíthető, de a telek adottságai lehetővé teszik új építésű családi ház, illetve ikerház kivitelezését is, ami különösen vonzó befektetési szempontból.

Telek jellemzői:
-Telek mérete: 721 m²
-Utcafront: 14,8 m
-Mélység: 48,7 m
-Beépítési mód: szabadonálló / oldalhatáron álló / ikres
-Beépíthetőség: 30%
-Zöldfelület: 50%
-Max. épületmagasság: 6 m

A belváros, tömegközlekedés, boltok, iskola mind pár percen belül elérhetők, miközben a környék nyugodt, kertvárosias hangulatú.
Az alaprajz tájékoztató jellegű!

Ne hagyja ki ezt a remek lehetőséget, ragadja meg az alkalmat, akár jó befektetést, akár családi otthont keres! További információkért és megtekintési időpontért állok szives rendelekezésére : Kresznóczki Ágnes +36 20 312 65 19

Kresznóczki Ágnes

Kresznóczki Ágnes

Ingatlanértékesítő
Debrecen
+36 (20) 312 6519
Észrevétel a hirdetéssel kapcsolatban
Egy ingatlanos naplója