Felsőörsön Balatoni panorámás téliesített ingatlan eladó!

5226 Nyomtatás Ajánlás Facebook

Eladó Felsőörsön egy kivételes adottságokkal rendelkező, zártkerti ingatlan! (mivel kivonták a termelési ág alól, így azonnal birtokba vehető!)

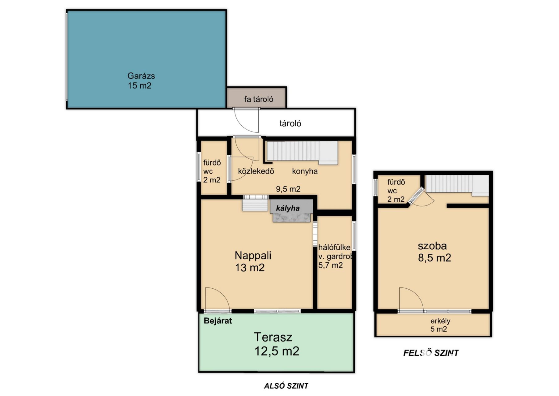
Ez a csendes utcában található. Az ingatlan félig aszfaltos, félig földúton megközelíthető. A kétszintes épület 45 m²-es lakótérrel és 768 m²-es telekmérettel várja új tulajdonosát. A telek 4 oldalából az egyiken van kerítés. Az épület esztétikai felújítást igényel, így lehetőséget kínál arra, hogy saját igényeire szabhassa álmai otthonát.
Közművek: villany és víz
A téliesített házban található egy tágas nappali, egy kényelmes hálószoba, valamint két fürdőszoba, amely ideális elosztást biztosít a mindennapi élethez. A terasz és az erkély tökéletes helyszíne lehet a reggeli kávézásoknak vagy esti pihenésnek, miközben élvezheti a környező természet nyugalmát.

Az ingatlanhoz tartozik egy pince, amely kiváló tárolási lehetőségeket biztosít, valamint 2 tároló és egy 15 m2-es garázs!
A terület déli tájolású, és nagyon szép rálátást biztosít a Balatonra. Dél-keleti irányba viszont lejt, ami egy 10-15m-es szintkülönbséget jelent. Szélvédett és jól benapozott, ezért gyümölcs és szőlő telepítésre kiváló!

Ne hagyja ki ezt az egyedülálló lehetőséget, hogy Felsőörsön, ebben a békés, természeti környezetben töltődhessen, vagy akár élhessen! Várom érdeklődését az alábbi elérhetőségeken.

For sale in Felsőörs: a unique, private garden property with exceptional features! (Since it has been removed from agricultural production, it can be occupied immediately!)

This two-story building, located on a quiet street, offers 45 m² of living space and a 768 m² plot, waiting for its new owner. The property requires aesthetic renovation, giving you the opportunity to shape your dream home according to your own needs.

The winterized house features a spacious living room, a comfortable bedroom, and two bathrooms, providing an ideal layout for everyday living. The terrace and balcony are perfect spots for morning coffee or evening relaxation while enjoying the tranquility of the surrounding nature.

The property includes a cellar, which offers excellent storage options, as well as two storage rooms and a 15 m² garage! The area is south-facing and offers a beautiful view of Lake Balaton. The plot slopes southeast, resulting in a 10-15 meter elevation difference. It is sheltered from the wind and well exposed to sunlight, making it excellent for planting fruit trees and vines!

Don’t miss this unique opportunity to recharge or even live in this peaceful, natural environment in Felsőörs! I look forward to your inquiry at the contact details below.

Szakács Katalin
PRÉMIUM

Szakács Katalin

11 éve a Városi Ingatlaniroda tagja
Ingatlanértékesítő
Veszprém
+36 (20) 529 5738
Észrevétel a hirdetéssel kapcsolatban
Egy ingatlanos naplója