Debrecen-Józsa csendes utcájában, ikerházat kínálunk

509 Nyomtatás Ajánlás Facebook

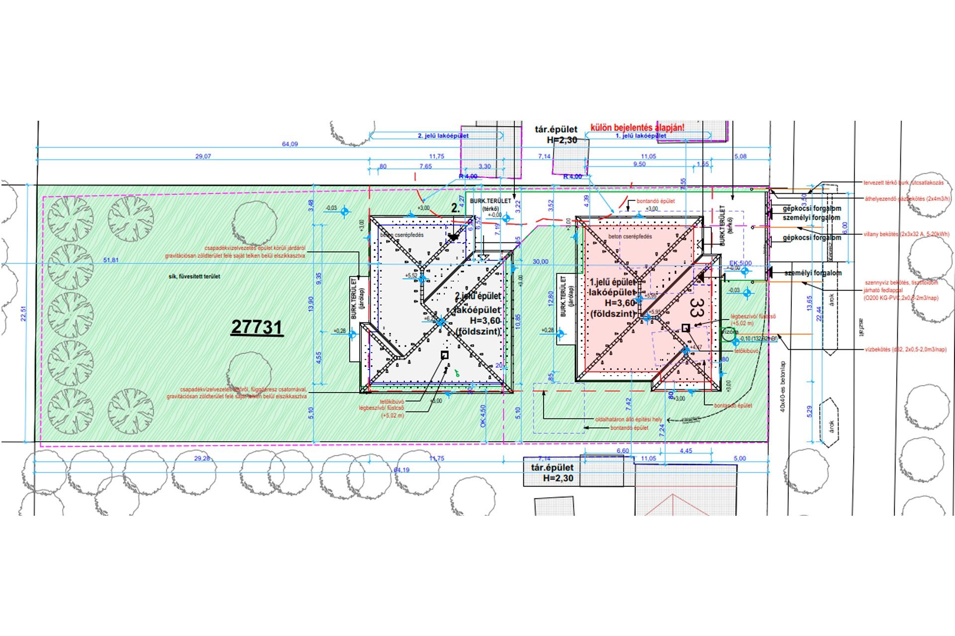
*Eladó ikerház Debrecenben, a keresett Józsa városrészben*

Kiváló minőségű új építésű, 113 m²-es lakóterületű ikerházat kínálunk megbízható, referenciákkal rendelkező kivitelezőtől!
A ház Józsa egyik csendes utcájában található, 380 m²-es telekkel, amely mindenki számára ideális teret biztosít a pihenésre és kikapcsolódásra.

Az ingatlannak nincs közös fala a szomszédos ikerházzal, így tökéletes otthont nyújt Önnek és családjának!

Az ingatlan jellemzői:
- 3 tágas szoba
- 1 világos nappali
- fürdőszoba + külön WC
- Amerikai konyha + étkező, amely ideális a családi étkezésekhez és vendéglátáshoz
- Redőnyözött ablakok a maximális komfort érdekében
- Tágas terasz, 16 m2-es, amely közvetlen kertkapcsolattal rendelkezik
- 18 m2 garázs praktikus elektromos garázskapuval
- Korszerű klímaberendezés, hogy minden évszakban kellemes hőmérsékletet biztosítson
- Külső hőszigetelés az energiahatékonyság növelése érdekében
- Padlófűtés biztosítja a maximális komfortérzetet
- Hűtő-fűtő klíma

Az alacsony fenntartási költségekkel rendelkező ház tökéletes választás azok számára, akik csendes, barátságos környezetben szeretnének élni, mégis közel Debrecen város pezsgéséhez.

-Ne hagyja ki ezt a remek lehetőséget!
-Tekintse meg személyesen, időpont egyeztetéssel ezt a gyönyörű otthont!
Nemes Gabriella +36-70-406-6880

*Semi-detached house for sale in Debrecen, in the sought-after Józsa district*

We offer a high-quality newly built semi-detached house with a living area of ​​113 m² from a reliable contractor with references!
The house is located in a quiet street in Józsa, on a 380 m² plot, which provides ideal space for everyone to relax and unwind.

The property does not share a wall with the neighboring semi-detached house, so it provides a perfect home for you and your family!

Property features:
- 3 spacious bedrooms
- 1 bright living room
- bathroom + separate toilet
- American kitchen + dining room, ideal for family meals and catering
- Shuttered windows for maximum comfort
- Spacious terrace, 16 m2, with direct garden access
- 18 m2 garage with practical electric garage door
- Modern air conditioning to ensure a pleasant temperature in all seasons
- External thermal insulation to increase energy efficiency
- Underfloor heating ensures maximum comfort
- Cooling-heating air conditioning

The house with low maintenance costs is the perfect choice for those who want to live in a quiet, friendly environment, yet close to the hustle and bustle of Debrecen.

-Don't miss this great opportunity!
-View this beautiful home in person, by appointment!
Gabriella Nemes +36-70-406-6880

Nemes Gabriella

Nemes Gabriella

Ingatlanértékesítő
Debrecen
+36 (70) 406 6880
Észrevétel a hirdetéssel kapcsolatban
Egy ingatlanos naplója